欢迎您进入常熟市沙家浜镇天晨工程材料厂
收藏本站
联系我们
安装服务一条龙 助力建筑行业
变形缝
设计、定制、制造、安装
首选服务商
全国咨询热线
17372160237
网站首页
产品中心
工程案例
生产实力
新闻动态
解决方案
关于我们
联系我们
产品中心
PRODUCT
地面变形缝
外墙变形缝
屋面变形缝
内墙变形缝
防尘地毯
石材分隔条
结构拉缝
免费咨询热线
17372160237
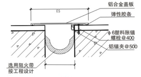
内墙变形缝
您的位置:
主页
»
产品中心
»
内墙变形缝
»
prev
next
IL1
咨询热线:
17372160237
产品详情
咨询:IL1
*为必填项
*联 系 人
*手机号码
咨询内容
提交您的咨询信息